SKU: 46f123d27602

The Harvest Run Steel Barndo House Kit

$273,900.00

The Harvest Run Farmhouse Steel Barndo Kit

Farmhouse Luxury Meets Family Function.

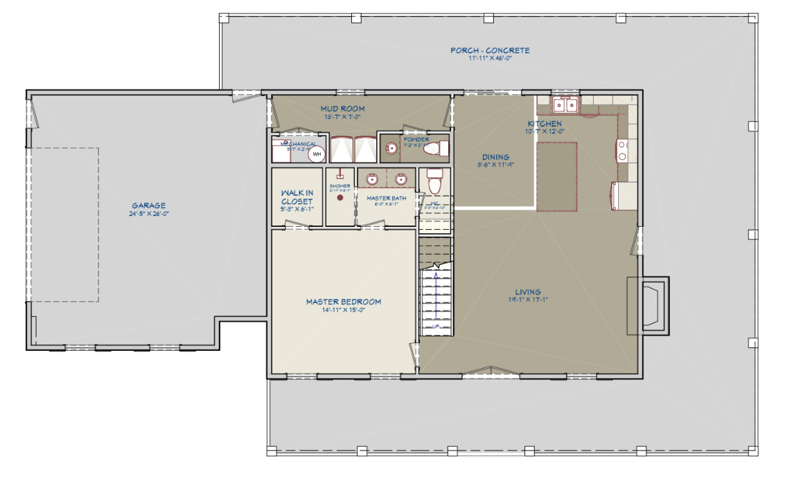
The Harvest Run is a stunning two-story steel farmhouse designed for families who need space, style, and strength. With 4 bedrooms, 3.5 bathrooms, and over 1,200 sq. ft. of covered porches, this home brings traditional charm and modern efficiency together in one incredible layout. From everyday living to entertaining, this design checks every box.

Key Specs:

  • Total Finished Living Area: 2,340 Sq. Ft.

    • Main Level: 1,170 Sq. Ft.

    • Second Level: 1,170 Sq. Ft.

  • Bedrooms: 4

  • Bathrooms: 3.5

  • Garage: 2 Bays (659 Sq. Ft.)

  • Porches: 1,207 Sq. Ft. of Covered Outdoor Living

  • Total Area Under Roof: 4,206 Sq. Ft.

Exterior Dimensions:

  • Width: 76′

  • Depth: 46′

  • Ridge Height: 26’7″

Construction Details:

  • Foundation: Slab

  • Exterior Walls: 2×6 framing

  • Roof Structure: Engineered Trusses

  • Floor System: I-Joists

  • Roof Pitch: 6:12

  • Ceiling Heights:

    • Main Level: 9′

    • Second Level: 8′

The Harvest Run is ideal for homesteaders, growing families, or those looking to create a rental property that stands out. With its open floor plan, ample porch space, and steel-frame durability, this is the kind of home you build once—and enjoy for generations.

Call 800-513-1675 or click “Request a Quote” to make the Harvest Run yours.
Shipping & installation available in all 50 states.